New Construction
Dr. Mike DostalShawnee, KS 66226
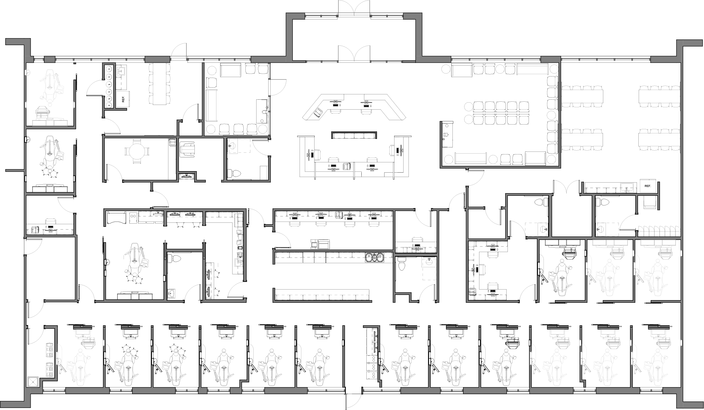
Size
7,629 SF
Ops
18
Room YieldMore Info
424 SF / OP
Room Yield, or Room Ratio, is a measurement of efficiency in dental office design. It is calculated by dividing the number of treatment rooms (your productive office space) into the total square footage. Lower is typically better, but there's also a sweet spot for efficiency at around 330 square feet.
Schedule a free half-hour meeting with us to discuss your goals. We will put you on the path to the practice you've always wanted.
The 5-Step Playbook is a great starting point for doctors who want to learn more about designing a new practice. It details the 5 major phases of practice development and covers everything from purchasing real estate to hosting your grand opening.
This roadmap will keep you on track and help you avoid mistakes along the way.