Learning Center/Making Dentistry Easier/Dental Office Design (3)

Dental Office Design (3)
Making Dentistry Easier

dental delivery methods | dental delivery systems | Equipment

Which dental delivery system is best for doctors and their patients?

January 4th, 2023|4 min. read

Layout | Dental Office Design | Dental Office Floor Plan

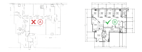
Keep the dentist near the treatment rooms

November 21st, 2022|2 min. read

Layout | Dental Office Design |

How To Reduce Noise Between Dental Treatment Rooms

October 28th, 2022|1 min. read

17 elements | Front Desk | Floor Plan

Your Front Desk Is Your First Impression – Are You Getting It Right?

October 21st, 2022|1 min. read

17 elements | dental office entrance | Dental Office Design

Lost Patients = Lost Revenue: Why Your Entrance Design Matters More Than You Think

October 14th, 2022|2 min. read

Dental Office Design | Checkout | Efficiency

Making A Dental Treatment Room Great For Consultation

September 13th, 2022|4 min. read

Culture | dental office culture | Dental Office Design

Solving Staffing Shortages in Dentistry

September 1st, 2022|2 min. read

Dental Office Design | Efficiency |

Four Steri-Center Options For Your Dental Practice

August 23rd, 2022|4 min. read

Subscribe to our blog and be the first to know!

Culture | dental office culture | Dental Office Design

Building Efficiency at Westgate Dental Creates a World of Opportunities for Husband and Wife Team

August 4th, 2022|5 min. read

Culture | dental office culture | dental office equipment

Legendary Customer Service at Northwest Dental Group

July 22nd, 2022|5 min. read

Layout | Dental Office Design | case acceptance

Top Dental Office Design Tips To Make Space Appear Bigger

June 21st, 2022|4 min. read

Culture | dental office culture | Dental Office Design

Dental Office Culture Is the Key to Growth at Sala Family Dentistry

June 15th, 2022|6 min. read

Dental Office Design | Efficiency | Cost to build

How to Build a Dental Practice That Maximizes ROI (Not Just Minimizes Cost)

June 2nd, 2022|3 min. read

Layout | Dental Office Design | dental office site selection

How Do I Even Get Started With My Dental Office Design?

May 27th, 2022|3 min. read

Culture | dental office equipment | Design Ergonomics

Chrissy Cambra's Path to Managing the Research and Development Team at Design Ergonomics

May 24th, 2022|5 min. read

dental equipment | Equipment | Dental Office Design

Three Proven Ways to Increase Dental Office Capacity Without Building a New Office

May 10th, 2022|2 min. read

Culture | Dental Office Design | clinical training

The Future of Dentistry Discussed by Dr. John Meis and Dr. David Ahearn

May 7th, 2022|2 min. read

Dental Office Blocking Diagram | Layout | Dental Office Design

What are the two key steps to a great dental office design?

April 4th, 2022|4 min. read

Design Ergonomics | Layout | Dental Office Design

Dental Office Instruments and Supplies are Either Within Reach, or in a "Warehouse"

December 30th, 2021|3 min. read

dental office | Front Desk | dental tips

Top 5 Ways to Prevent Dentaphobia in Your Dental Practice

September 29th, 2021|3 min. read