Why do you need an "as built" dental office plan?
April 11th, 2024
4 min. read

By Tim Gagnon, Practice Liaison, Design Ergonomics
Each and every week at Design Ergonomics we are shown a plan that someone has drawn with inaccurate measurements. We've seen nice looking color renderings and 3-D perspectives done by realtors, and even dental supply companies, but unfortunately don’t reflect the reality of a space.
Would you create a dental treatment plan without comprehensive data?
Yes, you can look into someone's mouth and see that they need a lot of dentistry. But show me one dentist that actually has a professional degree and license that will attempt to turn that qualitative assessment into an accurate treatment plan. Anything other than a plan based on detailed, objective data (from radiographs, for one example) would be unthinkable in a dental practice. It's much like trying to plan for your future dental office without having accurate measurements of your space as it was constructed.
What is an “as built”?
In the construction industry, the term "as built" refers to drawings that represent the final layout of a building after its construction. These drawings depict any alterations from the original blueprint that occurred during the construction process. In other words, they show the project as it was truly built.
The importance of professional “as built” plans
Professional architects or draftsmen create accurate "as built" plans using digital drafting software like AutoCAD or Revit. These plans contain essential information such as the locations of exterior and interior walls, doors, windows, stairs, elevator shafts, built-in cabinets, plumbing fixtures, and major MEP (Mechanical, Electrical, and Plumbing) equipment, among other features.
Without these details accurately accounted for in the initial planning stage, costly errors and construction mishaps can occur. These could lead to conflicts among contractors, designers, and architects, and delay the completion of your office while inflating the overall cost.
A typical "as built" will include:
- All exterior and interior walls dimensioned
- Doors, windows, openings
- Exposed/suspected columns/load bearing structures
- Stairs, elevators and any elevation changes
- Built-in cabinets/counters/casework
- Utility panels & meters
- Water main and plumbing risers/fixtures
- Any major MEP equipment (furnace, air handlers, etc.)
- Major fixtures and/or dental equipment
- Structural & Finished Ceiling heights
Avoiding common mistakes with plans
In recent years, the rise of digital tools and mobile apps that allow individuals to convert PDFs into AutoCAD files has led to a proliferation of inaccurate, DIY “not-quite-as-built” plans. This practice should be avoided as these plans often lack vital details, which can result in unforeseen issues during construction.

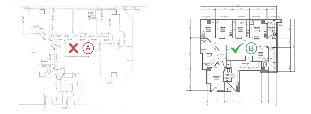
Example A is hand drawn and does not have enough information to create an accurate floor plan. Example B is an "as built" created with modern CAD software and contains accurate measurements and details that will serve as the foundation for your dental office design project.
The utilization of outdated blueprints is another common mistake. Although they may contain necessary structural details, these old plans may not account for small changes made by previous owners or distortions introduced during digital scanning.
At Design Ergonomics, we can sometimes begin a conceptual drawing called a Blocking Diagram with plans that are not “as builts” and may lack some small levels of detail. But we cannot then convert that Blocking Diagram to a Floor Plan without a professionally drafted “as built.” The Blocking Diagram is simply a tool for conceptual blockbusting as you work with our team to think about your ideal patient flow and practice operations. Creating a Blocking Diagram before a Floor Plan is a proven method for making sure that your goals stay in focus, but the output is not a document that can be used for construction. The reality is that you will need an “as built” before an accurate floor plan can be created. If any other design company or equipment supplier tells you otherwise, that’s a giant red flag.
The solution: hire professionals
If you don't have accurate “as built” plans, consider hiring a professional draftsman or architect to create them. If you're already working with a general contractor, they might be able to provide this service or recommend someone who can.
Professional on-site studies can provide dental-specific “as built” plans. Such services generally cost around $3,500, but they can save you from expensive errors and delays in the long run. Design Ergonomics also offers bundled pricing for a professionally drafted "as built" along with your Blocking Diagram and Floor Plan services. Reach out to our experienced Practice Liaison team for details about current deals on bundled services.
Most spaces can be measured for an "as built" within one day. However, for a complex space and/or a space bigger than 2,500 sf, the process may take two days. After measurements are made, creating the "as built" drawings usually takes about a week. Note there may be time involved in scheduling and arranging the site visit itself that will vary depending on your specific project (site accessibility, hours available, geographic location, etc.).
Don't put your dream dental office at risk
Remember, having an accurate “as built” plan before starting any dental office construction or renovation is paramount. This critical step can help avoid mistakes, save money, and ensure that the final layout meets your expectations. So, would you risk the realization of your dream dental office with inaccurate plans?
But there are many more specifics that a great “as built” provides. A great “as built” accurately identifies the location of critical infrastructure. In a rehab or existing shell situation, this alone can save tens of thousands of dollars. Further, for us at Design Ergonomics, our plans are renowned for making sure to get every inch of value from the space that you are going to be paying for. Wasting even as little as inches over the course of your occupancy really adds up. As if that were not enough, frequently an "as built" drawing will reveal a discrepancy in the actual square footage of a rental space. Small discrepancies add up to large amounts of money over the term with the lease.
If you have any questions, please reach out to our experienced Practice Liaison team. They've helped thousands of dentists to create thriving dental practices that they are proud to own and work in every day. They can evaluate any existing plan that you have and, if needed, help to coordinate the creation of an “as built” plan with you that will serve as the foundation for your dream dental office design.
With over three decades of expertise in cosmetic and restorative dentistry, Dr. David Ahearn is a nationally recognized leader, educator, and innovator. His passion for cutting-edge technology and exceptional patient care is the driving force behind everything we do. As the founder of Design Ergonomics and Ergonomic Products, Dr. Ahearn has dedicated his career to designing, equipping, and training North America's most efficient and productive dental offices. His proven strategies help hundreds of practices reduce stress, boost productivity, and build sustainable, scalable growth each year. A speaker and educator, Dr. Ahearn continues to shape the future of dentistry, empowering thousands of dentists to transform their practices, improve the quality of life for their teams and families, and deliver outstanding care to their communities.
Topics: