What is Room Yield and Why Is It Important?
April 17th, 2026
6 min. read
While working with Design Ergonomics, you will hear us refer to the term “room yield.” The purpose of our focus on room yield is very simple:
It is a measure of design efficiency.
How can you tell a good design from a bad one unless you have a way of keeping score?!
Previously, there had been no way to determine what success actually looks like. From a design perspective, “it's pretty” was the only measurement of success!
That’s why we developed a formula to measure the efficiency of your dental practice design.
In this article, we explain what the room yield formula is and why it is crucial when designing your dental practice.
Table of Contents
How Room Yield Affects Workflow and Layout
How Room Yield Changes at Different Practice Sizes
How Does Efficient Design Make You More Money?
What Is Room Yield in a Dental Office?
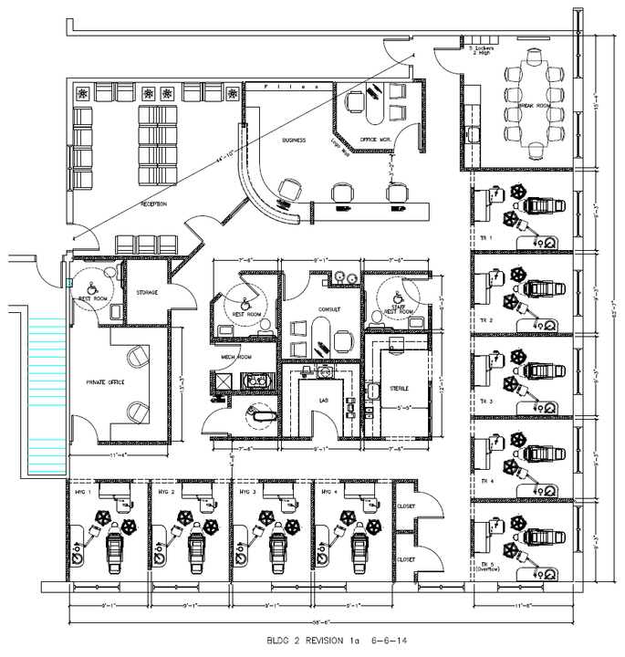
Room yield is the calculation of how many treatment rooms you obtain within the total space you are building or renting.
It is measured as:
Total square footage ÷ number of treatment rooms (your productive office space) = square feet per room
For example:
- A 4,500 square foot office with 10 treatment rooms has a room yield of 450 sq ft per room
It sounds simple. And it is.
But there are very important modifiers that affect what your target room yield should be.
It’s important to understand:
Room yield is not just the size of your operatories.
It reflects how your entire space is allocated, including both treatment rooms and the supporting spaces required to run the practice.
Because of this, it’s easy to manipulate room yield by reducing or eliminating critical support areas.
What Does Room Yield Look Like in an Average Practice?
Continuing with the bread-and-butter 10 chair office in a reasonably rectangular space.
Nationally, the average room yield is:
450 square feet per treatment room
Using that benchmark:
- A 10-chair office requires 4,500 square feet (10 × 450)
Even when the number of operatories decreases, the inefficiency remains:
- A 7-chair office still requires 3,150 square feet (7 × 450)
Quite honestly, these are inefficient designs that increase construction costs and reduce productivity.
At Design Ergonomics, we commonly create highly productive offices at:
~330 square feet per room
For comparison:
- A 10-chair office requires only 3,300 square feet (10 × 330)
- A 7-chair office requires just 2,310 square feet (7 × 330)
These offices are more comfortable, more productive, and achieve higher case acceptance.
Room Yield Calculator
Enter your total square footage to estimate the number of operatories based on room yields of 330 (Design Ergo design) vs 450 (Average design)
The following scale shows the optimal range for room yield. A room yield too low or too high can lead to extra costs and inefficiencies.
So, Why is Room Yield Important?
Our industry is designed for average.
Every day, we review plans that appear acceptable on the surface. But when you look closer, they are:
- Overly expensive
- Under capacity
- Designed to produce average productivity at best
And where do these plans come from?
In many cases:
- Well-intentioned local architects with limited dental-specific experience
- Dental dealers whose priority is selling equipment (like side cabinets) rather than your success.
There are simply no benchmarks for what success should look like.
Although unintentional, the outcome is borderline tragic. (lower productivity, stressed team, etc.)
This is the result of an industry that lacks clear performance standards.
That’s why room yield matters. It gives you a way to measure and improve your design.
If you are designing an office and you already have plans, it probably looks good.
Most do. That’s the problem.
What looks acceptable on paper often turns into expensive, underperforming space in reality
We offer a free floor plan review where our team evaluates your layout for efficiency, flow, and overall performance.
You’ll see exactly how your design is performing, and where it can be improved.
Request your free review here: https://desergo.com/free-floor-plan-review
How Does Room Yield Affect Workflow and Layout?
When operatories, flow, and support spaces are poorly organized, efficiency begins to break down.
The typical office is often overbuilt, with unnecessary storage and oversized areas that lead to clutter and disorganization. This disrupts workflow and makes even simple tasks more time-consuming.
Too much space creates:
- Excess storage
- Disorganization
- More steps
- More motion
- More stress
- Lower productivity
The more time your team spends moving between spaces, the less productive they become.
A better layout supports a better team, and a better team increases production.
Average design: (Not by Design Ergonomics)
- Oversized reception
- Small business/office manager office
- Oversized treatment rooms
- Not enough space in steri or lab
- Unnecessary halls from reception to staff room
Design Ergonomics Approach( Same space)
- Appropriate-sized reception
- Good size & direct connection to business/office manager
- Inwalls and Ergonomic Products equipment help room size
- Direct access from reception to team lounge
The Impact
In the original design, the room yield was 397 sq ft per op.
After optimizing the layout using Design Ergonomics principles, the room yield improved to 324 sq ft per op, while adding 2 additional operatories, without increasing total square footage.
How Does Room Yield Change at Different Practice Sizes?
A lower room yield does not automatically mean more efficient.
Why?
Because certain spaces are required regardless of practice size, including:
- ADA-compliant bathrooms
- Reception or greeter areas
- Doctor’s office
These spaces do not shrink proportionally as the number of operatories decreases.
So as a result:
-
As the number of operatories goes down, the amount of space required per room increases.
This leads to:
- Higher Cost per square foot
- Decreased efficiency as the number of operatories goes down
For example:
- A five-chair office still needs these spaces
- A three-chair office requires the same support spaces, but with fewer treatment rooms to distribute the cost and square footage
Supporting spaces such as steri, lab, storage, offices, and team spaces also play a critical role.
Expanding these areas reduces the space available for treatment rooms, which lowers overall room yield.
At the same time, these spaces cannot simply be minimized. They must be properly sized to support the clinical system.
In many cases, doctors spend more time in their offices in smaller practices, further affecting how space is used.
Our founder, Dr. Ahearn often jokes:
“When a doctor insists on a big, fancy corner office, I have to wonder—does this doctor not like doing dentistry, or just not like being home with their family?”
Larger Practices
At the other end of the spectrum, room yield efficiency also begins to decrease as practices scale.
In practices with 20 or more chairs:
- Hallway and egress requirements reduce efficiency
By that point, overall production is so high that the relative increase in real estate costs becomes less important.
Other scale efficiencies, such as reduced impact from cancellations or provider availability, typically outweigh any loss in real estate efficiency.
The goal is not to maximize or minimize space, but to align it. True efficiency comes from balancing treatment capacity with the systems that support it.
How Does Efficient Design Make You More Money?
It’s helpful to think in terms of flow, like a plumbing system.
Many dental offices are designed like oversized systems built to handle volume that rarely exists. Instead of improving performance, that excess capacity slows everything down.
Movement becomes inefficient. Systems become cluttered. Productivity drops.
In contrast, well-designed offices function as right-sized systems.
Everything has a purpose. Everything has a place.
Movement is minimized. Flow improves. Teams work faster with less effort.
Higher productivity doesn’t come from having more space, it comes from using space more intelligently.
And that’s where the financial impact becomes clear.
Meticulous planning allows you to build or rent one-third less space.
Over the life of a loan or mortgage, those savings become transformative.
You will never achieve that level of savings by:
- Cutting supply costs
- Eliminating office perks
- Reducing continuing education
- Making short-term cuts
Real savings come from making the right decisions upfront through extraordinary office planning.
How Poor Design Impacts Performance
Office design is a scientific process. It requires careful and detailed planning.
| Design decision | Consequence |
|---|---|
| Room yield too low | Eliminates spaces like a proper team lounge; negatively impacts employee retention |
| Room yield too high | Reduces delivery performance |
| Operatories too closed | Feels claustrophobic |
| Design too open | Becomes noisy and appears chaotic |
There is a lot to get right in dental office design. But here is the reality:
A well-designed office actually costs less than a poorly planned one.
At the end of the day, this is not about square footage. It’s about performance.
You can build a larger office and still underperform.
You can build a smaller, more efficient office and dramatically outperform.
The difference is not the size of the space; it’s how well it is designed.
Room yield lets you measure that. And once you can measure it, you can improve it.
Before you commit to your plans, make sure you understand what your design is actually delivering.
Why Work with Design Ergonomics?
We have been focused on this problem for decades. This is not theoretical for us; it’s what we do every day.
Most dental offices are designed by the dealers who went to business school. At Design Ergonomics, we design dental offices from a clinical perspective.
The true measure of great design is the ability to create an office that is both space-efficient and productive.
Schedule a meeting with our team to review your plans and see how your office can perform at a higher level.
Carlos is a Designer who collaborates closely with clients to create tailored environments, guiding projects from initial concepts through to detailed floor plans. His work is grounded in clear communication, ensuring each design reflects the client’s vision while delivering thoughtful, functional solutions. With experience from previous firms, Carlos brings a fresh, informed perspective that challenges assumptions and elevates the design process. He is driven by a mindset of continuous improvement, always seeking more effective and innovative outcomes. Outside of work, Carlos is committed to personal growth—currently learning German and Italian alongside his fluency in English and Spanish. He also enjoys experimenting with 3D printing and keeping up with stock market trends.
